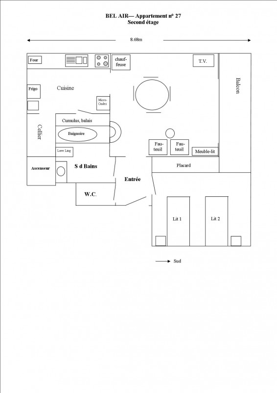
Bel Air 27
Präsentation
Période(s) d'ouvertureVom 01/03 bis 14/12/2025 täglich.
Vom 01/03 bis 13/12/2026 täglich.
Vom 01/03 bis 13/12/2026 täglich.
Informationen
- Type de Location :
- Appartement
- Kapazität :
- 45 m²
- 3 Personen
- 3 Räume
- Unterkunft :
- Unterkunft
Ausstattung und Dienstleistungen
- Aussenanlagen :
- Aufzug
- Parken :
- Parkplatz
- Privatparkplatz
- Hausgeräte :
- Staubsauger
- Gefrierschrank
- Backofen
- Private Waschmaschine
- Bügelausrüstung
- Mikrowelle
- Kühlschrank
- Sanitäranlagen :
- Badewanne
- Separate Toiletten
- 1 Bad (privat)
- Konfiguration :
- Küche
- Balkon
- Wohnzimmer/Esszimmer
- Speisekammer
- Multimedia :
- Fernsehen
- WIFI-Zugang
- Schlafplätze und Mobiliar :
- Bett 90 cm
- Babyausrüstung
- Babybett
- Außen :
- Gartentisch und-stühle
- Anlagen für Freizeitgestaltung :
- Anlagen für Freizeitgestaltung
Gut zu wissen
- Vermietung/Verleih :
- Bettwäscheverleih
- Hilfe für den Kunden / Praxis :
- Reinigung gegen Aufpreis
- Touristeninformation
- Touristenbroschüren
- Type de loueurs :
- Loueur particulier
Preise
- Zahlungsarten :
Kontakt
Van Boxsom Marie-Pierre
Mietadressblatt
Avenue des Thermes
04800
Gréoux-les-Bains
- Sprachen :
FICHE_INFO_SIMPLE_LIBELLE_DESTINATION
Avenue des Thermes
04800
Gréoux-les-Bains
GPS-Koordinaten
Breitengrad : 43.757935
Längengrad : 5.892445
Standortergänzung
- Environnements :
- Dorfzentrum
- Thermalstation















